REGGIO EMILIA – APPARTAMENTO IN CLASSE A
All’interno del complesso edilizio “Business Park”, in via Pansa a…
€152.000
Esclusiva
€208.000

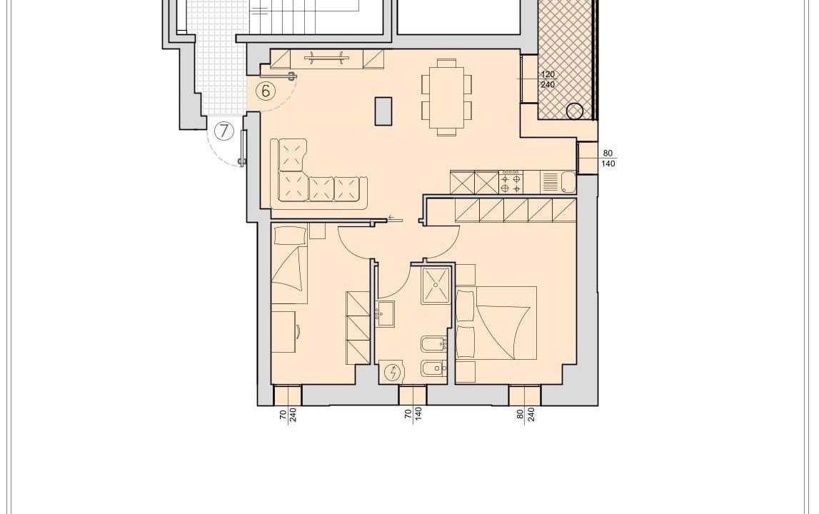
All’interno del complesso edilizio “Business Park”, in via Pansa a Reggio Emilia, proponiamo in vendita un appartamento situato al secondo piano di un moderno fabbricato residenziale con ascensore, composto da nove unità abitative e realizzato in classe energetica A. L’immobile si apre su un luminoso soggiorno con cucina a vista dotato di balcone, prosegue con una camera matrimoniale, una camera singola e un bagno finestrato.
Completano la proprietà un posto auto al piano interrato e una cantina. È inoltre disponibile la possibilità di acquistare un garage, sempre al piano interrato, al prezzo di € 15.000.
La zona è particolarmente comoda a tutti i servizi e si trova a breve distanza dal centro storico, rendendo la soluzione ideale per chi desidera comfort, efficienza energetica e una posizione strategica.
Elenco Accessori
All’interno del complesso edilizio “Business Park”, in via Pansa a…
€152.000
All’interno del complesso edilizio “Business Park”, in via Pansa a…
€232.000