S.GIOVANNI DI Q.LA- MINI APP.TO ALL’ULTIMO PIANO
Per chi cerca una soluzione in collina, immersa nel verde…
€79.900
Via M. R. Bertolini, 11, 42030 Prediera RE, Italy
Esclusiva, Residenziale
€89.900

















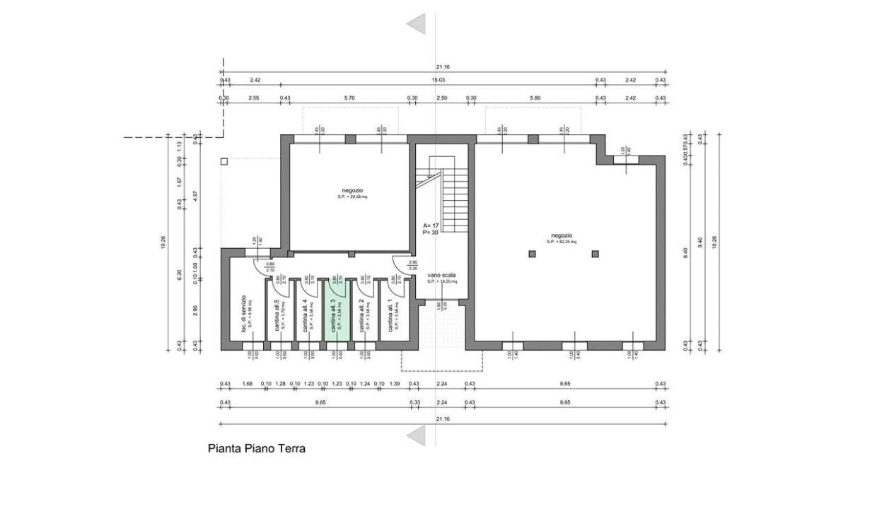
Per chi cerca una soluzione in collina, immersa nel verde con vista panoramica, proponiamo appartamento al piano primo di palazzina recente di sole 5 unità. L’appartamento, sviluppato su un unico livello, risulta composto da ingresso su soggiorno con angolo cottura e con balcone, una camera matrimoniale, una camera singola, bagno e disimpegno, infine al piano terra cantina privata. Possibilità di acquistare il garage di prossima costruzione ad € 15.000. Nella palazzina verrà realizzata una palestra condominiale al piano terra. Possibilità di acquistare altri appartamenti di varie metrature.
Elenco Accessori
Per chi cerca una soluzione in collina, immersa nel verde…
€79.900
Per chi cerca una soluzione in collina, immersa nel verde…
€59.900