Lotto edificabile (6.2) di 787 mq
A pochi minuti dall’imbocco dell’autostrada A1, e comodo alle citta…
€113.000
Via Falcone-Borsellino, 1, 43019 Soragna PR, Italy
Esclusiva
€137.000






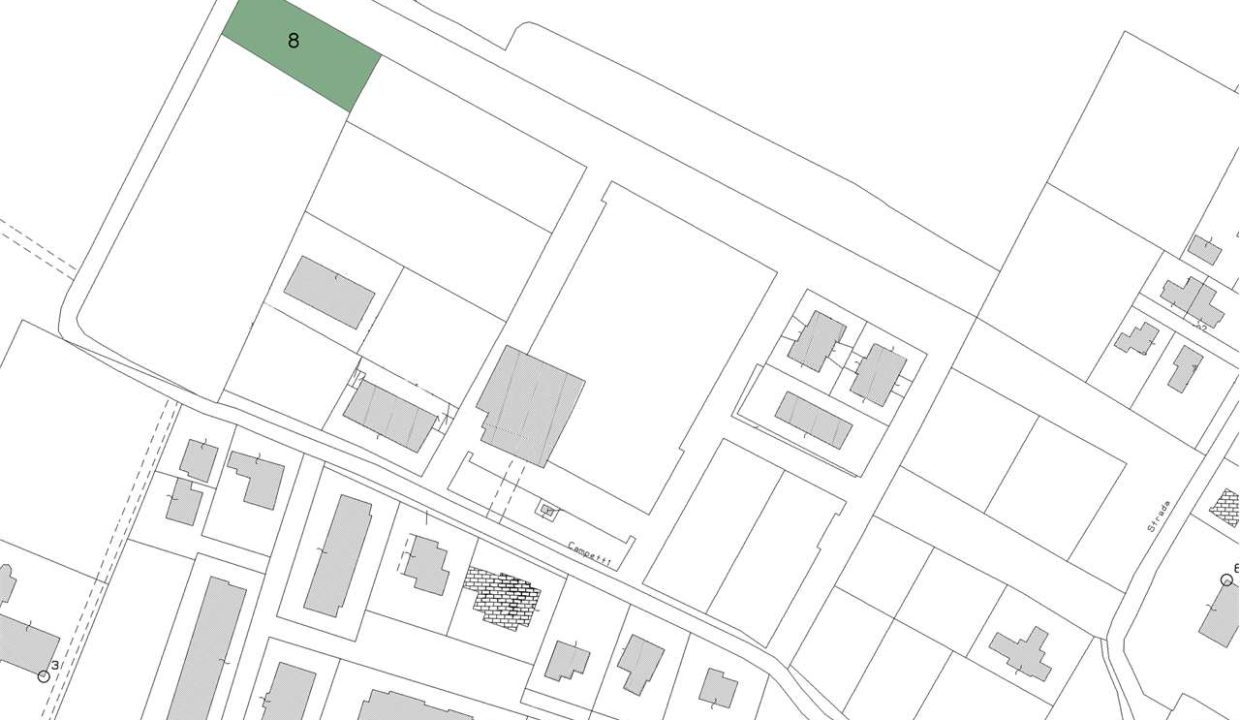
A pochi minuti dall’imbocco dell’autostrada A1, e comodo alle citta di Parma e Fidenza, proponiamo lotto di terra edificabile in località Soragna. Il lotto si trova all’interno di una lottizzazione situata in zona verde e tranquilla, comodo al centro del paese ed edificata in parte da piccole palazzine e da unità unifamiliari. Il lotto 8 ha una superficie fondiaria di mq 1142 e vi è la possibilità di sviluppare 424 mq si superficie utile più ulteriore superfice accessoria. E’ l’ideale per chiunque voglia ricavare villette a schiera od un condominio con poche unità abitative.
Elenco Accessori
A pochi minuti dall’imbocco dell’autostrada A1, e comodo alle citta…
€113.000
A pochi minuti dall’imbocco dell’autostrada A1, e comodo alle citta…
€129.000